大家熟悉CAXA这款软件吗?今天小编讲解了CAXA使用阵列的操作过程,下文就是CAXA使用阵列的操作教程,一起来学习吧。
CAXA使用阵列的操作过程介绍

圆形阵列
圆形阵列是比较常用的一种方法。比如一个法兰上有6个孔,我们只需要画出其中一个,其余可以通过阵列来实现。
在主菜单找到【修改】→【阵列】。

左下角选择【圆形阵列】,【旋转】、【均布】,6个(此数量将本体包含在内)。选择本体的圆及水平轴线作为阵列元素,选择圆形中轴线的圆心作为中心点。

选择完成后,鼠标右键确认,即可完成阵列。

若在左下角选择【圆形阵列】,【不旋转】,则完成阵列后,得到的圆和上面是一样的,但我们会发现轴线没有旋转,即选择【不旋转】时,阵列体的形状是本体平移得到的。

如果阵列时,不想均布,则可以选择【给定夹角】来完成,输入【相邻夹角】和【阵列填角】,即可完成不均布的阵列。这里可以根据自己的需要填入不同的夹角得到不同情况的阵列。例如本例中,选择夹角60°,阵列填角270°,就可得到5个阵列圆。

矩形阵列
矩形阵列是将阵列本体沿着两个相互垂直的方向进行阵列。在主菜单找到【修改】→【阵列】,左下角选择【矩形阵列】。这里以一个矩形内阵列四个圆为例。

在左下角按需求,输入行数和列数,以及阵列体之间的间距。阵列体的间距可以是负数,是根据阵列体相对于本体的位置而定,参考X、Y轴的方向决定正负。至于【旋转角】,0°则是水平和竖直阵列,可以根据需要输入不同的值,以按其它方向阵列。

曲线阵列
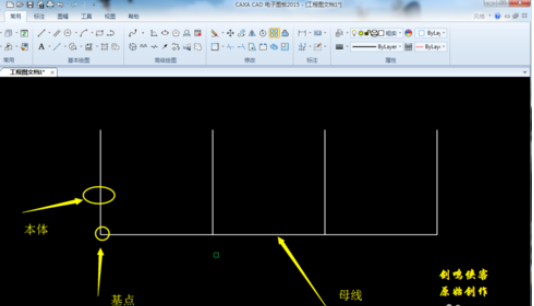
曲线阵列适用于本体沿着某一特定的母线进行阵列。母线可以是直线,也可以是曲线。当某条曲线上的元素相同且数量很多时,可以用曲线阵列。在【阵列】菜单下,在左下方切换为【曲线阵列】。

选择阵列本体作为阵列元素,后鼠标右键确定;再选择基点,鼠标右键确认;最后选择母线,鼠标右键确认,即可完成阵列。

各位小伙伴们,看完上面的精彩内容,都清楚CAXA使用阵列的操作过程了吧!