一些网友在使用ppt的过程里,该不会给矩形加上彩色发光滚动动画,所以本节就主要介绍了给矩形加上彩色发光滚动动画的相关操作,还不会的朋友就跟着小编学习一下吧,希望对你们有所帮助。
ppt给矩形加上彩色发光滚动动画的图文操作
1、首先启动ppt,右键单击选择设置背景格式选项,设置背景为灰色。

2、执行插入-形状命令,选择并绘制直线,设置形状轮廓为白色,粗细为4.5磅。
3、选择直线,执行ctrl+d两次复制得到两条,将其中一条向右旋转90,调整其长度。

4、再次复制一个短线段,调整他们的相对位置,使他们组合成一个长方形,ctrl+a全选后ctrl+g组合。

5、选择矩形执行ctrl+d五次,并依次修改他们的颜色,选择自己喜欢的颜色即可。

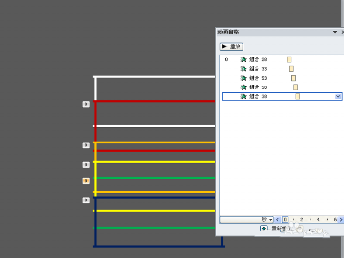
6、选择后四个矩形,执行动画-添加动画命令,选择擦除动画,设置效果选项为自左侧。

7、调出动画窗格,设置开始为从上一项开始,设置第一个延迟为0.25,第二个0.5,依次类推。

8、执行ctrl+a全选,执行格式-对齐命令,设置持续时间为2秒,播放查看动画效果。

还不了解ppt给矩形加上彩色发光滚动动画的图文操作的朋友们,不要错过小编带来的这篇文章哦。