当前不少网友会使用到迅捷CAD编辑器来编辑图纸文件,接下来小编要讲解的就是迅捷CAD编辑器编辑文件的详细操作方法,相信一定可以帮助到你们。
迅捷CAD编辑器编辑文件的详细操作

1、下载好迅捷CAD编辑器之后,双击运行软件如图。

2、若是需要对已有的DWG文件进行编辑,可以直接在软件上打开文件。点击软件顶部的“打开”按钮,在弹出的窗口中,选择文件即可。

3、点击软件上的“编辑器”,在工具栏上,可以查看到多种编辑工具。

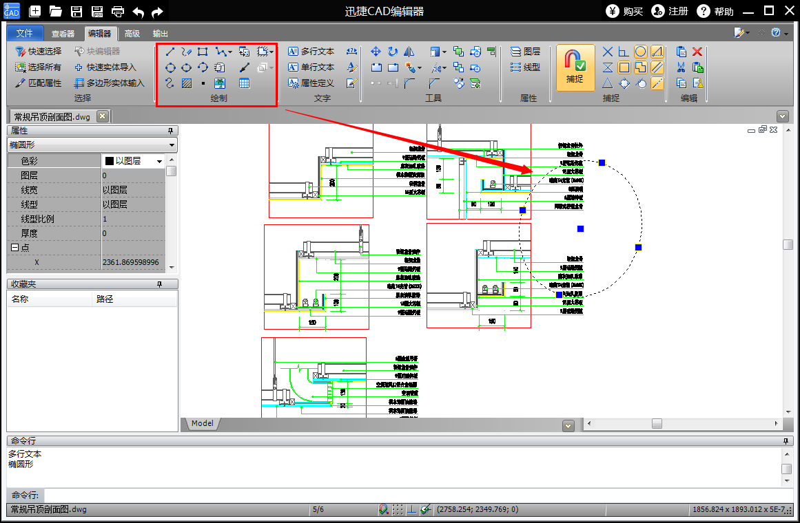
4、需要对文件进行绘制的话,在“绘制”模块中,选择各种绘制工具,然后在文档上进行绘制。

5、需要在文件上添加文字时,点击“文字”模块,在文档上即可添加文字。

6、在工具栏上,可以选择其他的工具,对文件进行针对性的编辑,若是要自己新建一份文档的话,可直接在“编辑器”界面上的右侧空白处进行编辑。

7、成功编辑好文件后,点击“保存”按钮,对文档进行存储。

DWG等图纸格式文件的编辑并不难,借助迅捷CAD编辑器就可以轻松实现了。软件上的编辑工具较为全面,可以满足大多数用户的编辑需求。
以上这里为各位分享了迅捷CAD编辑器编辑文件的详细操作方法。有需要的朋友赶快来看看本篇文章吧。