相信很多朋友都遇到过以下问题,就是酷家乐怎么下载cad户型图。。针对这个问题,今天小康教程小编就搜集了网上的相关信息,给大家做个酷家乐怎么下载cad户型图。的解答。希望看完这个教程之后能够解决大家酷家乐怎么下载cad户型图。的相关问题。
一些网友表示还不太清楚酷家乐怎么下载cad户型图的相关操作,而本节就介绍了酷家乐下载cad户型图的方法,还不了解的朋友就跟着小编学习一下吧,希望对你们有所帮助。
酷家乐怎么下载cad户型图?酷家乐下载cad户型图的方法

第一步:导入CAD文件
1、从刚进户型工具的弹窗导入
在云设计点击【开始设计】,进入工具页面后选择CAD导入即可。
注意:目前只支持DWG/DXF格式,DWG不超过5MB,DXF不超过10MB。

2、从户型工具里面导入
在户型工具页面点击【导入】-【导入CAD】即可。

第二步:调整导入的CAD户型图
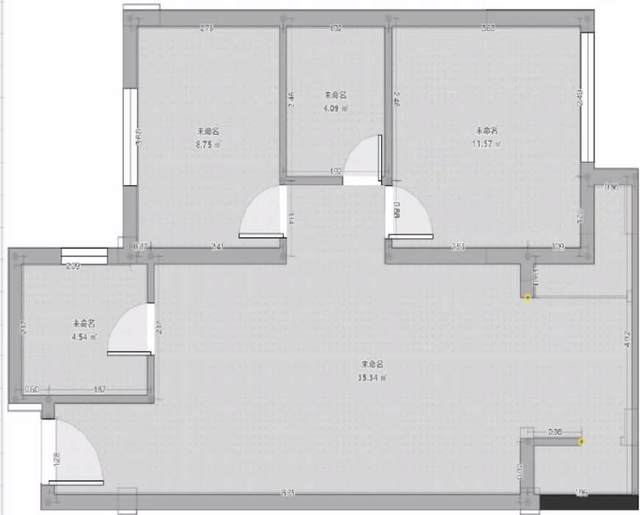
导入CAD之后,如下图所示

有一些没有生成的墙体点击户型界面左上角画墙工具补上(如图红框位置),画上墙体之后在左边选择门窗模型拖到墙上装饰即可,
注意:没有闭合的户型无法进行3D装修设计。

调整好门窗位置和门的开门方向之后,记得给各个房间命名!

全部调整好了之后,右下角有一个“底图设置”,把勾选的“显示CAD图”去掉就可以了

以上这里为各位分享了酷家乐下载cad户型图的方法。有需要的朋友赶快来看看本篇文章吧!